





Dom Złoty G2 P
Opis projektu
Dom Złoty G2 P to willa miejska zaprojektowana z myślą o statecznej rodzinie. Jego kształt zewnętrzny nawiązuje do budynków z okresu międzywojennego i doskonale wpisuje się bryłą w zastane osiedla. Ponadczasowa forma i materiały wykończeniowe, takie jak drewno, blacha i szkło, nadają budynkowi nowoczesnego charakteru.
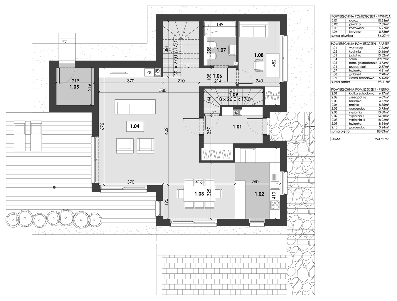
Duża otwarta część dzienna pozwala na wspólne spędzanie czasu rodzinie z dziećmi, natomiast część nocna na piętrze daje chwilę spokoju od codziennego życia. Gabinet, pełniący również funkcję pokoju gościnnego, zlokalizowany na parterze, nieco oddzielony od salonu, pozwala na skupienie w pracy. Równocześnie jest on na tyle blisko, by w każdej chwili móc uczestniczyć w życiu codziennym. Tuż obok gabinetu, pełniącego również funkcję pokoju gościnnego, znajduje się łazienka z prysznicem, która jest idealna do użytkowania przez osoby starsze.
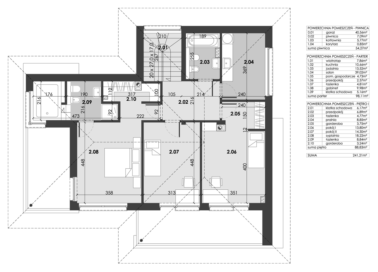
Górna kondygnacja została zaprojektowana tak, aby każdy z domowników miał swój azyl. W tej części znajdują się sypialnia główna z przejściową garderobą i łazienka, dwie sypialnie dziecięce oraz dostępna z holu łazienka i pralnia. W razie konieczności brak ścian nośnych na piętrze pozwala na dowolne przearanżowanie przestrzeni.
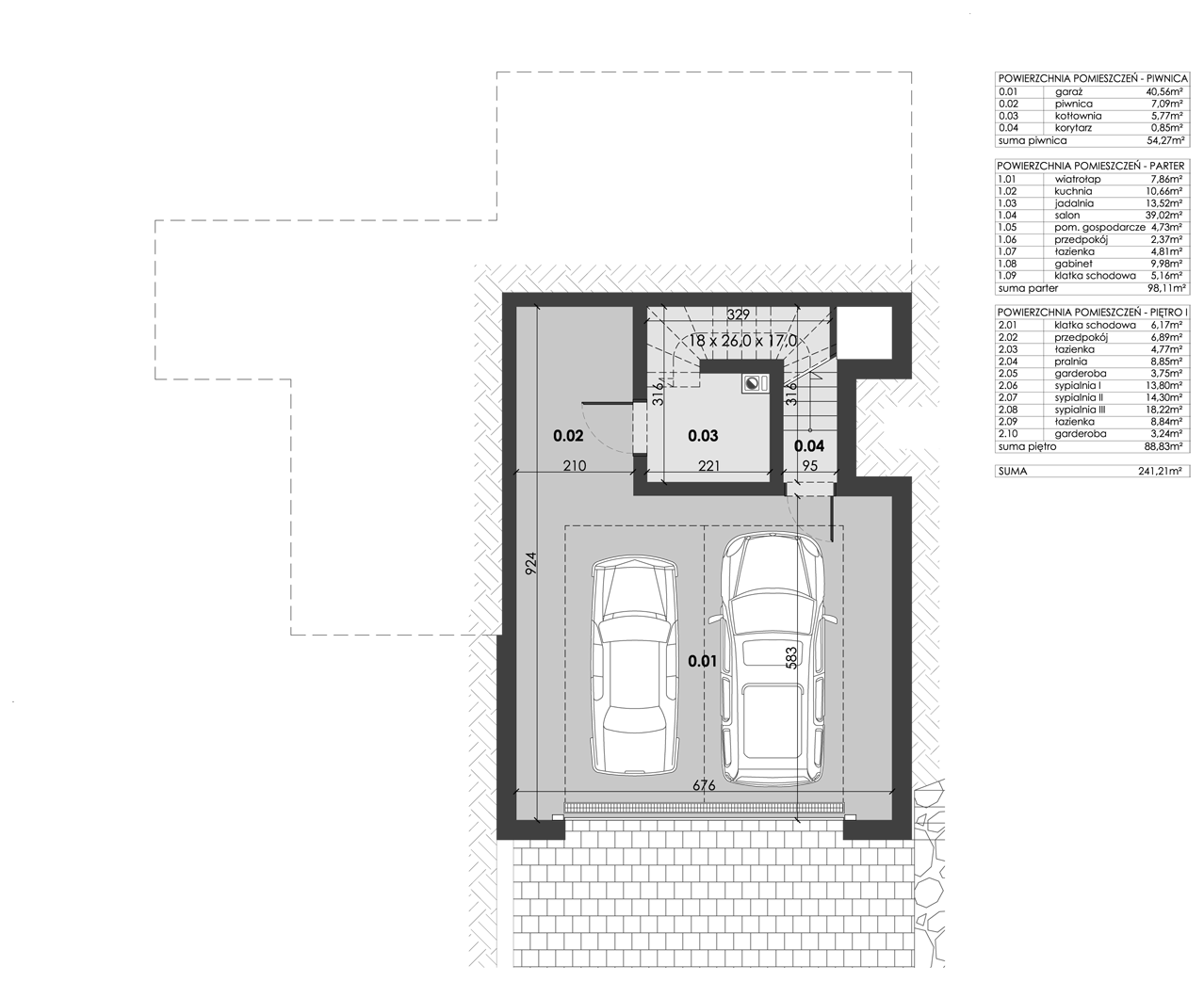
Rzut piwnicy i garażu

Rzut parteru

Rzut piętra

Działka

Komentarze
ZAMÓW PROJEKT
Dom Złoty G2 P
- pow. zabudowy: 146.02 m2
- pow. użytkowa: 241.21 m2
- pow. pomieszczeń: 186.94 m2
- pow. garażu: 40.56 m2
- pow. piwnicy: 13.71 m2
- pow. podłóg: 0 m2
- kubatura: 0 m3
- wysokość budynku: 8.09 m
- kąt nachylenia dachu: 15 stopni
- min. wym. działki: 20.18x21.70 m
CENA
- projekt: 5000 zł
INNE
- ilość sypialni: 3
- ilość łazienek: 3
- ilość miejsc w garażu: 2
TECHNOLOGIA
- ściany zewnętrzne: Porotherm
- strop: konstrukcja żelbetowa
- dach: konstrukcja drewniana
- ogrzewanie: gazowe
KOSZTORYS
- stan surowy otwarty: 0
- stan surowy zamknięty: 0
- stan developerski: 0
ZAPYTAJ O PROJEKT
