





Dom Cytrynowy
Opis projektu
Dom Cytrynowy to projekt niedużego, jednorodzinnego, niepodpiwniczonego domu bez garażu, budynek o współczesnej bryle pozbawionej okapów. Stworzony został z myślą o rodzinie, która ceni sobie wygodę.
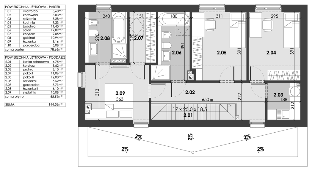
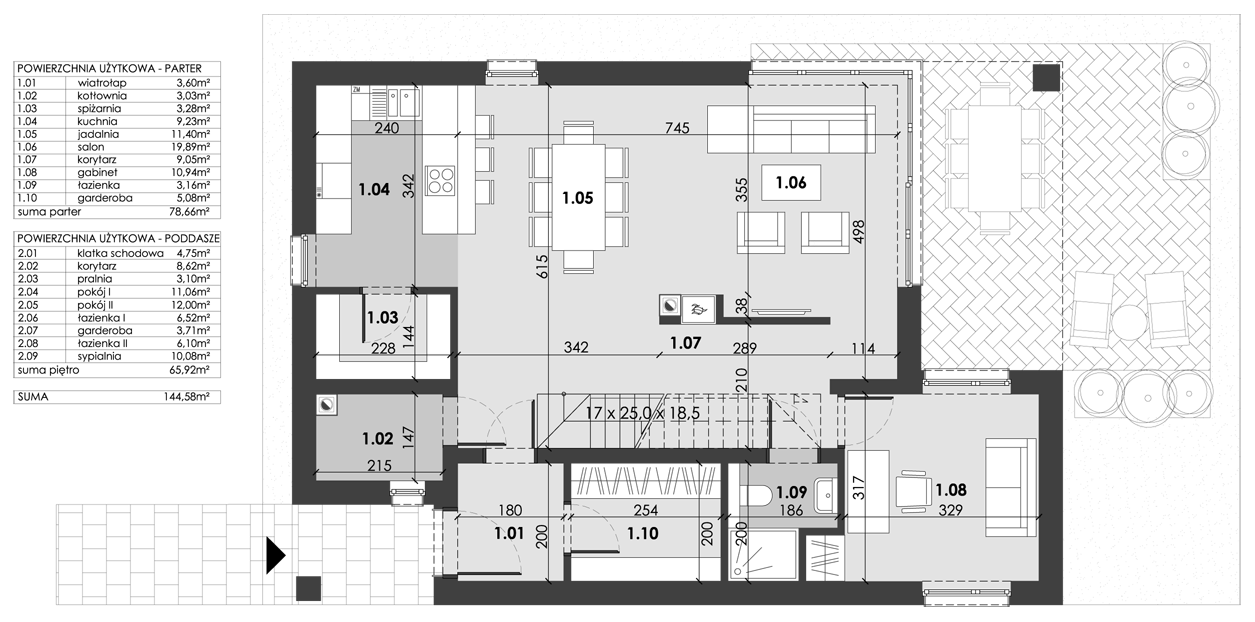
Dobrze przemyślany układ funkcjonalny zaplanowano na bazie zbliżonym do prostokąta z wyciętymi elementami akcentującymi wejście główne i taras od strony ogrodu. Tuż przy wejściu zlokalizowano kotłownię oraz bardzo dużą garderobę na okrycia wierzchnie, gdzie bez problemu zmieszczą się również drobne sprzęty sportowe. Znakomicie doświetlona strefa dzienna składająca się z salonu, jadalni i kuchni ze spiżarnią, posiada możliwość całkowitego oddzielenia od strefy wejściowej i klatki schodowej prowadzącej na poddasze. W głębi domu umiejscowiono gabinet oraz łazienkę dla gości, które mogą funkcjonować bez zaburzania domownikom ich codziennych zajęć.
Na poddaszu przewidziano kompleks tzw. masterbedroom składający się z sypialni głównej i dostępnych z niej łazienki i garderoby, dwa pokoje dziecięce z dostępną z korytarza łazienką oraz pralnię. Szeroki przedpokój doświetlono światłem naturalnym, dzięki czemu wydaje się duży i przestrzenny.
Zdecydowaną zaletą świadczącą o nowoczesności bryły budynku są dwa tarasy - jeden zadaszony na parterze od strony ogrodu i drugi dostępny z poddasza.
Rzut parteru

Rzut poddasza

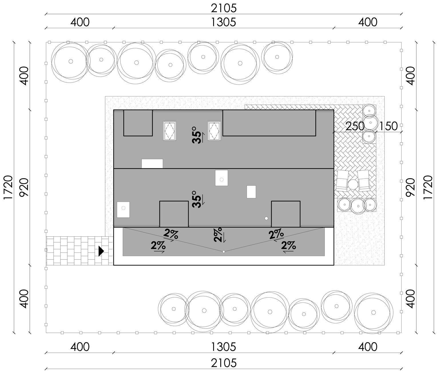
Działka

Komentarze
ZAMÓW PROJEKT
Dom Cytrynowy
- pow. zabudowy: 120.06 m2
- pow. użytkowa: 144.58 m2
- pow. pomieszczeń: 144.58 m2
- pow. garażu: 0 m2
- pow. piwnicy: 0 m2
- pow. podłóg: 151.47 m2
- kubatura: 735.95 m3
- wysokość budynku: 7.68 m
- kąt nachylenia dachu: 35 stopni
- min. wym. działki: 21.05x17.20 m
CENA
- projekt: 4700 zł
INNE
- ilość sypialni: 3
- ilość łazienek: 3
- ilość miejsc w garażu: 0
TECHNOLOGIA
- ściany zewnętrzne: Porotherm
- strop: konstrukcja żelbetowa
- dach: konstrukcja drewniana
- ogrzewanie: gazowe
KOSZTORYS
- stan surowy otwarty: 133980
- stan surowy zamknięty: 156410
- stan developerski: 349830
ZAPYTAJ O PROJEKT
